Dürfen wir vorstellen? Ihr neues Zuhause für die ganze Familie!

2 Dezember '25

Modernes Wohnen in traumhafter Lage

Unsere Immobilie des Monats ist ein echtes Highlight im neuen Wohngebiet Saarburg Terrassen.

Was macht das Reihenmittelhaus zum Highlight?

- Architektur & Design: moderne Bauweise, helle Räume und eine durchdachte Grundrissgestaltung. 
- Lage: Sonniger Hang mit Blick ins Grüne und einem zentralen Grünstreifen.
- Komfort: Hochwertige Ausstattung, energieeffiziente Bauweise und attraktiver Garten mit Südausrichtung.

Ausstattung:
- Sanitärobjekte "Ideal Standard" und "Kaldewei"
- Armaturen "Hansgrohe"
- Fliesen "Villeroy & Boch"
- Maler- und Tapezierarbeiten
- Luft-Wärme-Pumpe
- 2 Stellplätze
- elektrische Rollläden
- Fertigstellung voraussichtlich September 2026
Hier geht's direkt zum Haus 39
Reihenmittelhaus
image alt

Erdgeschoss – Offenes Wohnen mit Wohlfühlfaktor

Betreten Sie Ihr neues Zuhause über eine einladende Diele. Das offene Wohnkonzept verbindet Kochen, Essen und Wohnen zu einem kommunikativen Raum für Familie und Gäste. Die große Fensterflächen sorgen für Licht und Weite, während die Terrasse Ihr privater Rückzugsort im Grünen ist – perfekt für entspannte Abende.

image alt

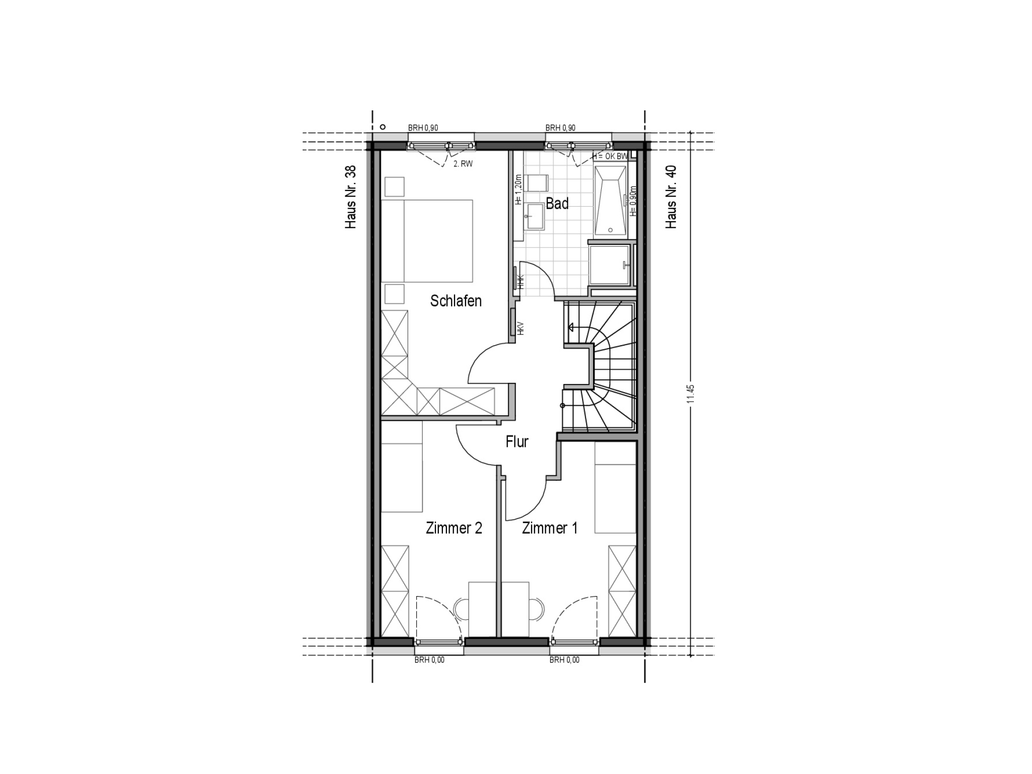
Obergeschoss – Rückzugsorte für die ganze Familie

Hier finden Sie drei optimal geschnittene Zimmer: ein großzügiges Schlafzimmer und zwei helle Kinder- oder Arbeitszimmer. Das moderne Bad mit Platz für Wanne und Dusche bietet Komfort für den Alltag.

image alt

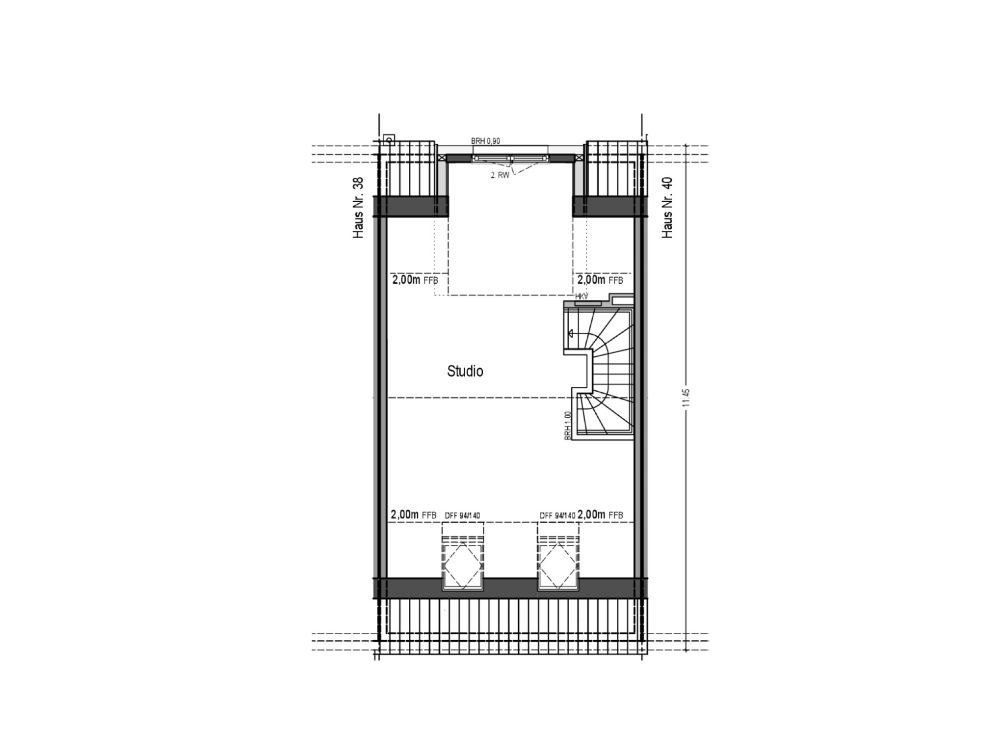
Staffelgeschoss – Ihr Plus an Freiheit

Das Dachstudio ist ein echtes Highlight: lichtdurchflutet und flexibel nutzbar – ob Homeoffice, Gästezimmer oder Hobbybereich. Hier genießen Sie Ruhe und einen fantastischen Ausblick.

image alt

Gut verstaut ist halb gewonnen

Nutzen Sie den großzügigen Keller (ca. 55,68 m²) für Hobby, Fitness oder Stauraum. Der separate Haustechnikbereich mit Waschmaschinenanschluss macht die Organisation einfach und komfortabel.

Interesse geweckt?

Sie interessieren sich für dieses Haus, oder möchten sich über unser Projekt "Saarburg Terrassen" informieren?

Dann vereinbaren Sie gern Ihren persönlichen Beratungstermin. 

Unser Vertriebspartner Herr Carsten Lott ist für Sie vor Ort:  

 

Wann: jeden Sonntag von 11 - 15 Uhr (nach Terminvereinbarung)

Wo: Vertriebsbüro, Irscher Straße 38b, 54439 Saarburg

Sie erreichen uns unter [email protected] oder Telefon: 069 50 60 37 38